Book An Event
In Chickasha, OK
Request Call Back
Hero Request Form
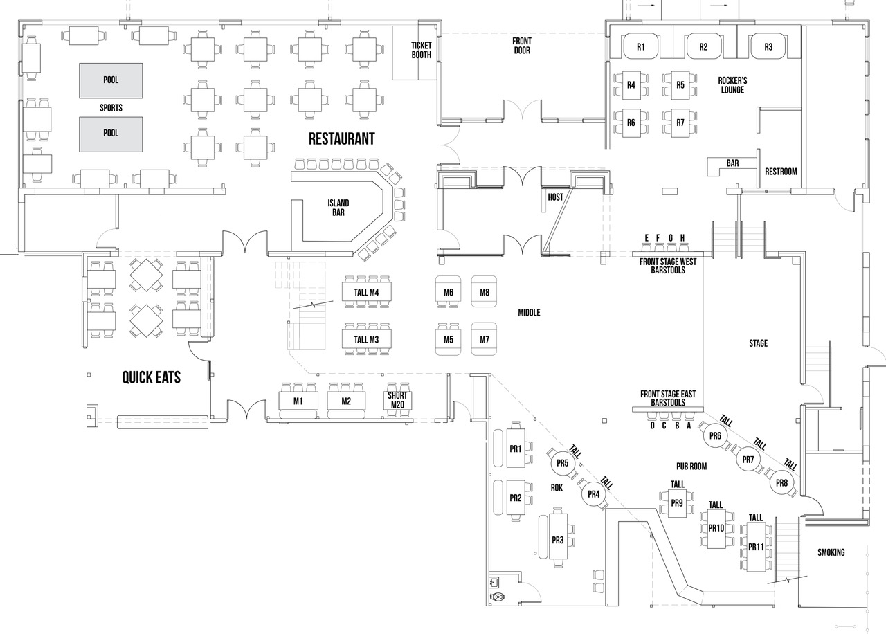
Venue Floorplan
Make Your Next Event Unforgettable With Us
Looking for the perfect venue to host your special event? Legends Pubhouse & Venue in Chickasha, OK has you covered.
We're passionate about creating memorable experiences for a wide range of events, including:
- Wedding rehearsals and receptions
- Bachelor and bachelorette parties
- Company gatherings
- Proms
- Baby showers
- Anniversary celebrations
With over a decade of experience, our family-operated venue knows how to make your event shine.
Get in touch today for a free same-day quote and let's start planning something extraordinary.
Your Event Deserves a Legendary Setting
Whether you're celebrating a milestone or bringing people together, the right venue can elevate any occasion.
At Legends, we offer:
- Versatile spaces for various event types
- Live music options to set the mood
- Experienced staff to assist with planning
- Flexible arrangements for rehearsals and receptions
From intimate gatherings to grand celebrations, we're here to bring your vision to life. Reach out to our team and let's discuss how we can make your event truly legendary.
Experience the Legends Difference
Choosing the right venue can make or break your event.
Here's why Legends stands out:
- Family-operated with a personal touch
- Over 10 years of event expertise
- Locally based in Chickasha, OK
- Commitment to creating unique experiences
- Hassle-free planning process
We're more than just four walls - we're your partners in creating unforgettable moments. Contact us to see how we can transform your event ideas into reality.
Let's Create Something Legendary Together
Your special day deserves a special venue. At Legends, we're ready to help you plan an event that will be remembered for years to come. From weddings to corporate parties, baby showers to proms, we have the experience and dedication to make it happen. Don't settle for ordinary when you can have extraordinary - request a call back today and let's start planning your legendary event.



Share On: